Search

Leave a Message

Thank you for your message. We will be in touch with you shortly.

Explore Our Properties

Property Description

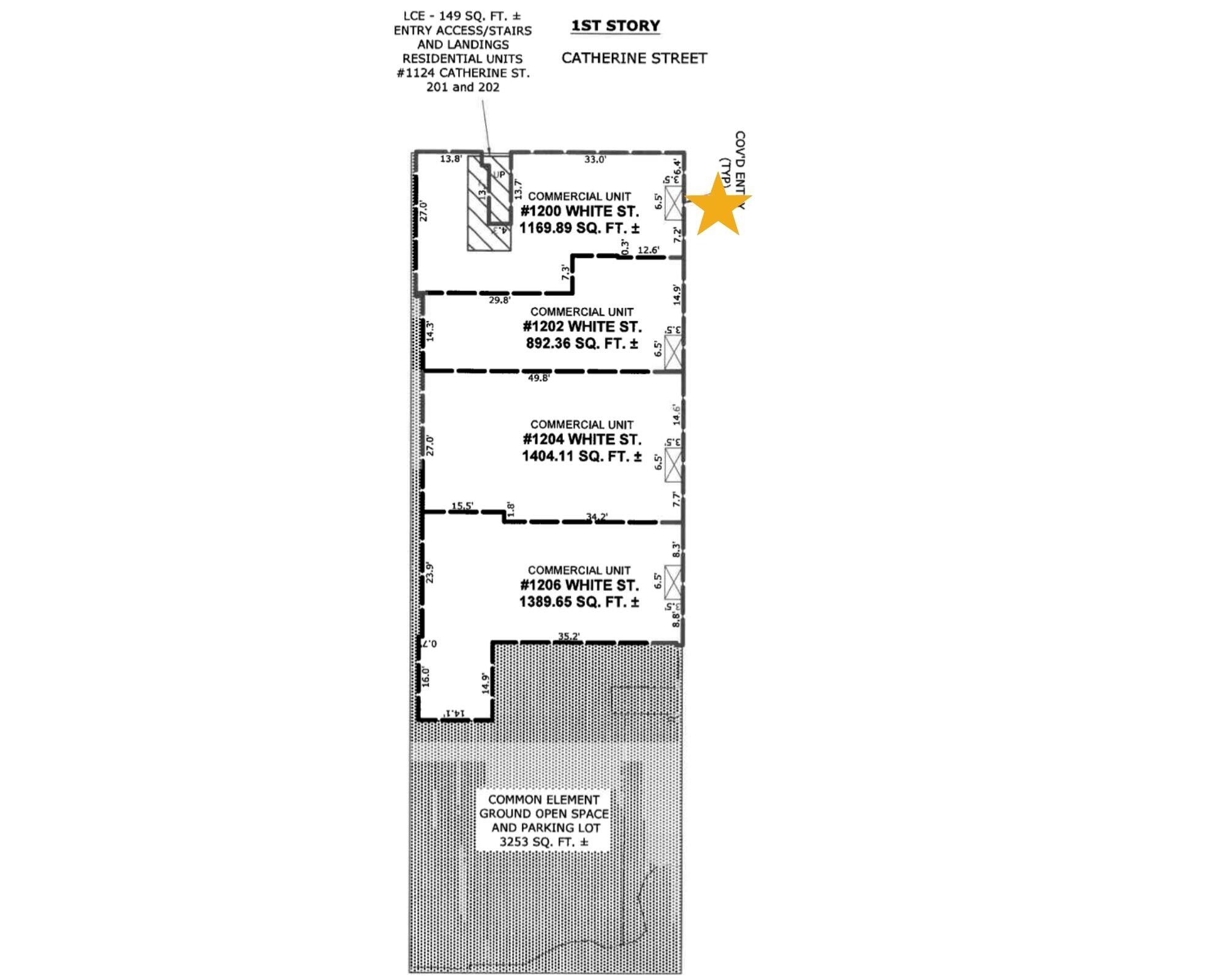
Newly formed commercial condo now available for sale on White Street in X Flood Zone! This 1,169sf 1st floor corner unit has been extensively updated and renovated with hurricane rated impact windows & doors and comes with 1 assigned parking spot. The monthly condo fee for this unit is $614.37 and includes windstorm and liability insurance. Condo docs & survey in documents tab. Tenant in place, please do not disturb business. HNC-1 zoning uses include professional offices, retail sales & services, specialty shops, restaurants. *3 other commercial condos also available. **Seller is a licensed Florida realtor.

Overview

Property Status
For Sale
MLS ID
614332
Property Type
Commercial
Year Built
1989

Features & Amenities

Neighborhood
Old Town
Water Frontage
None
View Description
No Waterview
Stories
1
Utilites
FKAA, Buyer to Verify, Municipal Sewer
Roof
Other Roof
Lot Features
None
Parking
Assigned Parking, Off Street Parking
Air Conditioning
Central Air
Appliances
No Appliances
Other Interior Features
Glass Doors, Impact Rstnce Doors, Impact Rstnce Window
HOA Amenities
Building Insurance, Common Area Mnt
Sales Price
$789,999
HOA
$614/mo
Zoning
CG - General Commercial

Downloads

1200 White Street

Schedule a Tour

We would love to help you see this beautiful home! As a full-service brokerage, we can help you tour. Please submit an offer, and answer questions about the buying process.

Thank you

for your interest in 1200 White Street, Key West, FL 33040

1200 White Street
Navigate
Old Town

Explore Old Town

Carries its own unique character yet shares the same laid-back rhythm of life that defines the Keys.

read more

Mortgage Calculator

Estimate your monthly mortgage payment, including the principal and interest, property taxes, and HOA. Adjust the values to generate a more accurate rate.
$0,000 Your Payment 20 15 65
$0,000 Your Payment

I'm Interested In

1200 White Street

Our Top Listings

Featured Properties

Handpicked homes and properties that represent the best of Key West living — luxury, location, and lifestyle.

  • 412 Frances Street For Sale

    $11,500,000

    412 Frances Street, Key West, FL 33040

    • 15 Beds
    • 18 Baths
    • 5,731 Sq.Ft.
  • 616 Eaton Street For Sale

    $7,495,000

    616 Eaton Street, Key West, FL 33040

    • 5 Beds
    • 7 Baths
    • 4,000 Sq.Ft.
  • 1006-1008 Fleming Street For Sale

    $5,395,000

    1006-1008 Fleming Street, Key West, FL 33040

    • 4 Beds
    • 5 Baths
    • 3,336 Sq.Ft.
  • 406 United Street For Sale

    $4,699,000

    406 United Street, Key West, FL 33040

    • 4 Beds
    • 5 Baths
    • 3,624 Sq.Ft.
  • 1113 Stump Lane For Sale

    $4,595,000

    1113 Stump Lane, Key West, FL 33040

    • 4 Beds
    • 5 Baths
    • 2,985 Sq.Ft.
  • 1217 Johnson Street Active Under Contract

    $4,595,000

    1217 Johnson Street, Key West, FL 33040

    • 5 Beds
    • 6 Baths
    • 3,650 Sq.Ft.
  • 1523 Patricia Street For Sale

    $4,320,000

    1523 Patricia Street, Key West, FL 33040

    • 4 Beds
    • 3 Baths
    • 3,164 Sq.Ft.
  • 33 Cypress Avenue Active Under Contract

    $3,595,000

    33 Cypress Avenue, Key Haven, FL 33040

    • 4 Beds
    • 5 Baths
    • 4,102 Sq.Ft.
  • 418 William Street For Sale

    $3,295,000

    418 William Street, Key West, FL 33040

    • 4 Beds
    • 3 Baths
    • 1,852 Sq.Ft.
  • 410 Louisa Street For Sale

    $2,849,000

    410 Louisa Street, Key West, FL 33040

    • 3 Beds
    • 3 Baths
    • 2,002 Sq.Ft.
  • 1427 Washington Street For Sale

    $2,625,000

    1427 Washington Street, Key West, FL 33040

    • 4 Beds
    • 3 Baths
    • 2,051 Sq.Ft.
  • 1109 Stump Lane For Sale

    $2,395,000

    1109 Stump Lane, Key West, FL 33040

    • 3 Beds
    • 4 Baths
    • 1,724 Sq.Ft.
  • 17210 Angelfish Lane For Sale

    $2,299,999

    17210 Angelfish Lane, Sugarloaf Key, FL 33042

    • 3 Beds
    • 3 Baths
    • 2,288 Sq.Ft.
  • 17210 Angelfish Lane For Sale

    $2,299,999

    17210 Angelfish Lane, Sugarloaf Key, FL 33042

    • 3 Beds
    • 3 Baths
    • 2,288 Sq.Ft.
  • 1706 Seminary Street For Sale

    $2,199,000

    1706 Seminary Street, Key West, FL 33040

    • 3 Beds
    • 3 Baths
    • 1,938 Sq.Ft.
  • 1229 5Th Street For Sale

    $1,995,000

    1229 5Th Street, Key West, FL 33040

    • 6 Beds
    • 3 Baths
    • 3,197 Sq.Ft.
  • 3841 N Roosevelt Boulevard Unit: 315 For Sale

    $1,949,000

    3841 N Roosevelt Boulevard Unit: 315, Key West, FL 33040

    • 2 Beds
    • 3 Baths
    • 1,357 Sq.Ft.
  • 3841 N Roosevelt Boulevard Unit: 332 For Sale

    $1,949,000

    3841 N Roosevelt Boulevard Unit: 332, Key West, FL 33040

    • 2 Beds
    • 3 Baths
    • 1,357 Sq.Ft.
  • 408 William Street For Sale

    $1,800,000

    408 William Street, Key West, FL 33040

    • 4 Beds
    • 3 Baths
    • 1,943 Sq.Ft.
  • 17213 Starfish Lane For Sale

    $1,799,000

    17213 Starfish Lane, Sugarloaf Key, FL 33042

    • 3 Beds
    • 2 Baths
    • 1,750 Sq.Ft.
  • 1616 Atlantic Boulevard Unit: 3 For Sale

    $1,699,000

    1616 Atlantic Boulevard Unit: 3, Key West, FL 33040

    • 2 Beds
    • 3 Baths
    • 1,940 Sq.Ft.
  • 1317 Newton Street For Sale

    $1,399,900

    1317 Newton Street, Key West, FL 33040

    • 2 Beds
    • 3 Baths
    • 1,386 Sq.Ft.
  • 1224 Flagler Avenue Active Under Contract

    $1,349,000

    1224 Flagler Avenue, Key West, FL 33040

    • 5 Beds
    • 4 Baths
    • 2,146 Sq.Ft.
  • 247 Golf Club Drive Active Under Contract

    $1,325,000

    247 Golf Club Drive, Key West, FL 33040

    • 3 Beds
    • 3 Baths
    • 1,600 Sq.Ft.
  • 3841 N Roosevelt Boulevard Unit: 222 For Sale

    $999,000

    3841 N Roosevelt Boulevard Unit: 222, Key West, FL 33040

    • 3 Beds
    • 3 Baths
    • 1,586 Sq.Ft.
  • 701 Spanish Main Drive Unit: 221 For Sale

    $995,000

    701 Spanish Main Drive Unit: 221, Cudjoe Key, FL 33042

    • 2 Beds
    • 2 Baths
    • 864 Sq.Ft.
  • 3 Birchwood Drive Active Under Contract

    $915,000

    3 Birchwood Drive, Key Haven, FL 33040

    • 3 Beds
    • 1 Bath
    • 1,223 Sq.Ft.
  • 3841 N Roosevelt Boulevard Unit: 213 For Sale

    $899,000

    3841 N Roosevelt Boulevard Unit: 213, Key West, FL 33040

    • 2 Beds
    • 3 Baths
    • 1,357 Sq.Ft.
  • 3705 Eagle Avenue For Sale

    $859,500

    3705 Eagle Avenue, Key West, FL 33040

    • 6,000 Sq.Ft.
  • 3711 Eagle Avenue For Sale

    $859,500

    3711 Eagle Avenue, Key West, FL 33040

    • 2 Beds
    • 2 Baths
    • 1,464 Sq.Ft.
  • 1206 White Street For Sale

    $810,000

    1206 White Street, Key West, FL 33040

    • 1 Bath
  • 1200 White Street For Sale

    $789,999

    1200 White Street, Key West, FL 33040

    • 1 Bath
  • 17220 Angelfish Lane For Sale

    $725,000

    17220 Angelfish Lane, Sugarloaf Key, FL 33042

    • 8,165 Sq.Ft.
  • 17220 Angelfish Lane For Sale

    $725,000

    17220 Angelfish Lane, Sugarloaf Key, FL 33042

  • 17230 Angelfish Lane For Sale

    $725,000

    17230 Angelfish Lane, Sugarloaf Key, FL 33042

  • 17230 Angelfish Lane For Sale

    $725,000

    17230 Angelfish Lane, Sugarloaf Key, FL 33042

    • 8,165 Sq.Ft.
  • 1202 White Street For Sale

    $699,000

    1202 White Street, Key West, FL 33040

    • 1 Bath
  • 1124 Catherine Street Unit: 202 For Sale

    $649,000

    1124 Catherine Street Unit: 202, Key West, FL 33040

    • 2 Beds
    • 1 Bath
    • 677 Sq.Ft.
  • 816 South Street Unit: 4 For Sale

    $629,000

    816 South Street Unit: 4, Key West, FL 33040

    • 1 Bed
    • 1 Bath
    • 640 Sq.Ft.
  • 701 Spanish Main Drive Unit: 384 For Sale

    $600,000

    701 Spanish Main Drive Unit: 384, Cudjoe Key, FL 33042

    • 2,308 Sq.Ft.
  • 3930 S Roosevelt Boulevard Unit: E104 For Sale

    $525,000

    3930 S Roosevelt Boulevard Unit: E104, Key West, FL 33040

    • 3 Beds
    • 2 Baths
    • 1,062 Sq.Ft.
  • 31129 Avenue G For Sale

    $455,000

    31129 Avenue G, Big Pine Key, FL 33043

    • 3 Beds
    • 3 Baths
    • 844 Sq.Ft.
  • 1124 Catherine Street Unit: 201 For Sale

    $449,000

    1124 Catherine Street Unit: 201, Key West, FL 33040

    • 1 Bed
    • 1 Bath
    • 454 Sq.Ft.
  • 201 Coppitt Road Unit: 201A For Sale

    $360,000

    201 Coppitt Road Unit: 201A, Big Coppitt, FL 33040

    • 1 Bed
    • 1 Bath
    • 536 Sq.Ft.
View All

WORK WITH TST

The Spottswood Team is one of the most accomplished real estate groups in the Florida Keys, guiding buyers and sellers through 1,000+ successful transactions across Key West and beyond. With over $1 billion in closed sales volume, TST continues to set the standard for excellence in island real estate.

Follow Us On Instagram